150-Unit Shore Road Housing Plan Pitched in Informal Old Lyme Zoning Discussion
The informal plan drew a blunt response from one Zoning Commission member: “I don’t want this in town.”

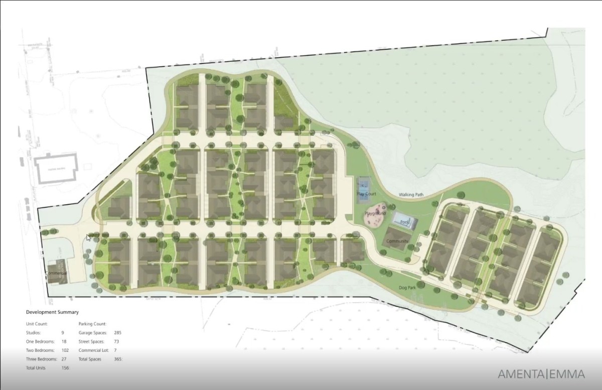
OLD LYME, CT – A development partnership was in town Monday for an “informal” conversation to gauge the Zoning Commission’s appetite for a 150-unit housing development at the site of the Cherrystones Driving Range.
The project area, tucked into 29.4 acres owned by Osprey Landing LLC, is bounded by a railroad to the north and wetlands to the east and west. Presented by representatives of the West Hartford-based Simon Konover Company and Norwalk-based Heritage Housing Inc., the proposal is still in early stages and has not yet been filed with the Zoning Commission.
Heritage Housing President David R. McCarthy said the developers also have an “informal” agreement to purchase the property.
Any plans to incorporate housing in the commercial zone would require changes to the town’s zoning regulations. Project attorney Amy Souchuns told the commission her clients would be interested in drafting an amendment that would allow them to build the kind of rental housing that does not exist in town currently.
“We’re trying to look at this from the perspective of coming in cooperatively, early on in the process, to get your input and thoughts as to things that would be important if you were interested in this concept,” she said.
McCarthy and Newton C. Brainard, vice president of acquisitions and development at Simon Konover, said after the meeting that the development would be a mix of one-, two- and three-bedroom rental units.
Forty-five of the units would be set aside for renters making from 80 to 100% of the area median income, which is $126,600 for a family of four. This is generally considered part of the “workforce housing” demographic consisting of people who earn too much to qualify for subsidized housing but still find themselves priced out of the local housing market.
The proposal comes as the Connecticut General Assembly has increasingly enacted measures to spur workforce and affordable housing options across the state.
The makeup and square footage of the units has not been “fully fleshed out,” according to Brainard.
According to a news report in the Hartford Business Journal, Brainard previously held a senior position at Hamilton Point Investments in Old Lyme. He rejoined Simon Konover in 2012 after having worked for the company previously.
He said the group – including Heritage Housing President David McCarthy and Souchuns – will be back next month to discuss the concept with the commission after the packed agenda left little time for discussion Monday.

The roughly 20-minute introduction from Souchuns and project architect Miles Brown of Amenta Emma Architects laid out a preliminary concept for the development mimicking the style of the neighborhoods across the street in the Hawk’s Nest Beach area.
Brown described a vision for “two story homes, front porches, walkable sidewalks, tree lined streets” in a multifamily development designed to resemble a traditional neighborhood. He said amenities would include a clubhouse, pool, playground areas and possibly a dog park.
Souchuns said preliminary testing showed soils in the area are adequate for a community septic system and conversations with Connecticut Water indicate the utility is equipped to provide the development with water. She acknowledged questions remain.
“Obviously if we were to move forward, we’d be having those conversations,” she said.
For commission Secretary Jane Marsh, the abbreviated introduction provided enough time for her to determine a project of its scope does not fit in Old Lyme.
“I don’t want this in town,” she said.
She said building tightly packed shoreline lots would be a step backward. She noted that the neighborhoods constructed across the street, which the architect cited as the project’s design inspiration, largely went up before zoning regulations went into effect to control the number and size of lots.
She didn’t buy the argument that meeting an unmet need is enough justification to change zoning.
“I’ve never felt that Old Lyme has to serve every market,” she said. “It’s got its own sort of way of being.”

But member Michael Fogliano, former chairman of the Affordable Housing Commission and current Zoning Commission representative to the town’s Housing Strategic Planning Committee, said the project represents “a niche worth talking about.”
He referenced a comprehensive state law enacted last year that attempts to address a long-standing housing shortage.
The law, among other things, calls on the state Office of Policy and Management to evaluate how many units must be built to address the shortage, and leaves it up to nine councils of government across Connecticut to create regional growth plans that spread out the need across the cities and towns in their jurisdictions.
Plans must take stock of developable land, outline ways to broaden housing options and evaluate whether infrastructure, such as wastewater systems, can support growth. The state law also requires a clear timeline for putting those strategies into action.
Fogliano, describing the town’s infrastructure issues as daunting, said the proposal is nevertheless “directionally correct” in terms of where the state is telling municipalities to go.

After the meeting, McCarthy said setting aside 30% of the units at lower rents is aimed at meeting local housing needs rather than qualifying for state incentives designed to encourage affordable and workforce housing.
McCarthy founded Heritage Housing in 2017, according to his website biography. He specializes in affordable housing financing, with more than 18 years of experience in Connecticut, New Jersey, Michigan and West Virginia.
“The idea behind the inclusion of affordable housing is really to address a need within the town,” he said. “We find in working in other communities that units of housing at these affordability levels actually serve the town residents.”
He cited a recent development he consulted on in New Canaan with 104 units, 21 of which were set aside for renters making 80% of the area median income. He said two-thirds of those units went to residents from New Canaan or surrounding towns.
“It was a selective town the way Old Lyme is, where there were higher barriers to entry,” he said.
Comments (7)
Comments are closed.

We already have aggressive multi year construction peaking thru the summer months when school is not is session, at Mile Creek School. This will be the 2nd very loud heavy equipment year.
Due to the proximity of the school, fire Department on Cross Lane and limited access to Rt 156, summer activities etc. this would be a very questionable use for this property. There is already other residential multi home development on Buttonball.
There is lots of other property in Old Lyme that should be considered first, inland away from the shore. Seems a much more feasible and safe situation to concentrate this building project on, as areas of very limited occupancy now. Safer and more doable for all
While I agree that this portion of 156 is in need of improvement, I disagree that this the answer.
The proposed density is too much. Where is the need, other than the developer maximizing return? The Town doesn’t know what its “fair share” of affordable housing is from St. Ct. OPM / RCoG, and wont know until late in 2027.
Secondly, the Town re-write of the zoning regulations is ongoing and awaiting residents input on this topic and others, and not complete.
A case of a motivated seller, a developer looking to maximize profit and a Town ill-prepared at this time to approve any zoning amendments, nor projects of this scope.
P.s. Its my opinion that the Town should request a moratorium from the state until our “need” or “fair share” contribution of affordable housing is known. Why not get ahead of the developers leveraging the opportunity. Look around the state everyday towns across the state.are dealing with new proposed projects. To me it shows a weakness in the statute..and they are taking full advantage of it for profit. If anyone thinks the developers have an interest in helping the town…well..I think we all know the answer to that…IMO.
As a longtime local resident who is familiar with the area, it’s great to see a long-derelict site finally being brought back to life. This kind of development is exactly what the community needs, especially given the severe housing shortage. Projects like this don’t just provide much-needed homes—they also help revitalize neighborhoods and create a more vibrant, livable area for everyone. Heritage has a strong track record of doing things the right way, as we’ve seen in their work in New Canaan, Hartford, and Norwich, so there’s good reason to be confident in the outcome. I’m fully in support of this and look forward to seeing the positive impact it will have.
I have been expecting a determined attack on OL Zoning for many years and this appears to be an opening salvo, aided by the state’s “mandates” including housing/water/sewer “crises” which have conveniently hindered extreme development, so far. I also want to point out that the “100 Acres”/driving-range land was once proposed to be the the town’s shore-communities’ water-treatment area — before the state’s firm mandate to pipe the shoreline’s effluent to New London via the East Lyme-Waterford system of pumping stations (usage which we in OL would have to pay for, by the way). So there is much more to this Utopian development than it’s (rather nice!) residential buildings.
I currently live directly across from this site on Rt 156. During the busy summer months on a beautiful summer weekend when State highway 95 is backed up for many miles 156 is most drivers escape from the 95 backup. There are times that I CANNOT get out of my driveway. We DO NOT need to add to this mess.
While I agree with Jane Marsh recent municipal elections have resulted in the elections of ultra liberal individuals, like Michael, who would support Zoning Regulations that will forever change the character of Old Lyme. I’m afraid that Jane, and like minded individuals, will loose this battle. Elections have consequences and the voters, many misinformed l,have spoken.